2025 | EFH zu MFH Biberist
Die Bauherrschaft wünschte sich eine kleinere, altersgerechte Wohnung. Doch die Suche gestaltete sich schwierig – zu teuer, zu unpassend, zu wenig vertraut. Und das Eigenheim? Voller Erinnerungen und zu wertvoll, um es einfach loszulassen.
Weiterlesen
Also entstand eine neue Idee:
Ein behutsamer Umbau, der nicht nur Platz schafft für den nächsten Lebensabschnitt, sondern gleichzeitig den finanziellen Spielraum im Alter verbessert.
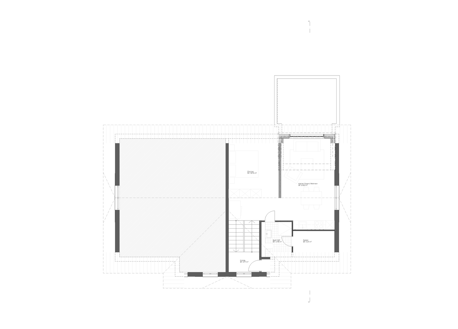
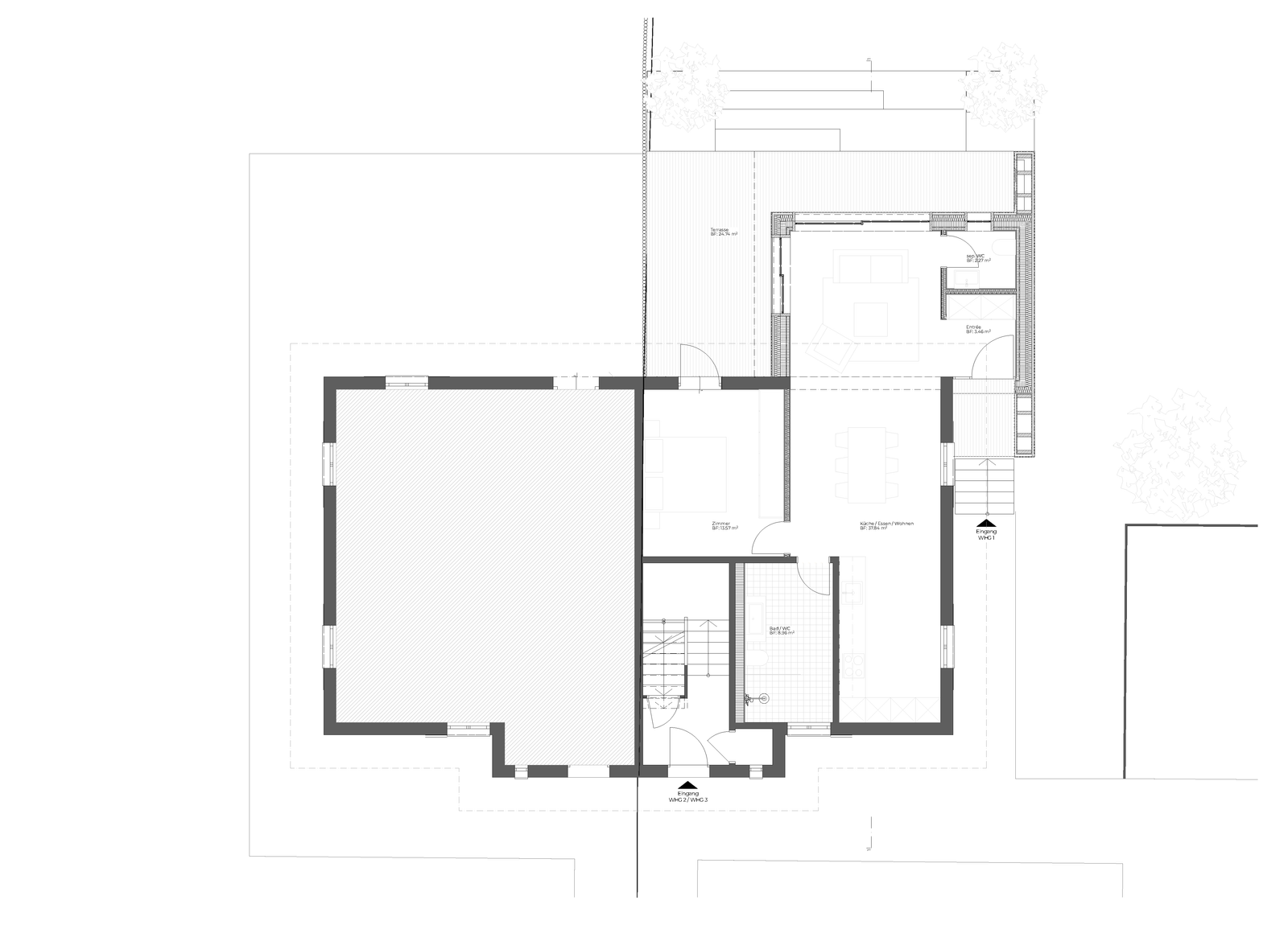
Geplant ist eine Transformation in drei eigenständige Wohneinheiten:
– Im Erdgeschoss entsteht eine barrierefreie 3.5-Zimmer-Wohnung mit separatem Zugang im Norden – ideal für ein selbstbestimmtes Wohnen im Alter.
– Im Obergeschoss ist eine 3-Zimmer-Wohnung vorgesehen,
– Im Dachgeschoss eine 2.5-Zimmer-Wohnung – beide Einheiten können zukünftig vermietet werden.
Das Ziel: Bestehenden Raum neu denken, Wohnqualität schaffen – und ein Zuhause erhalten, das mehr bietet als nur Quadratmeter.
